|
Call us anytime (03) 9016 2606 / 0498 259 267 |
|
Drop us a line [email protected] |
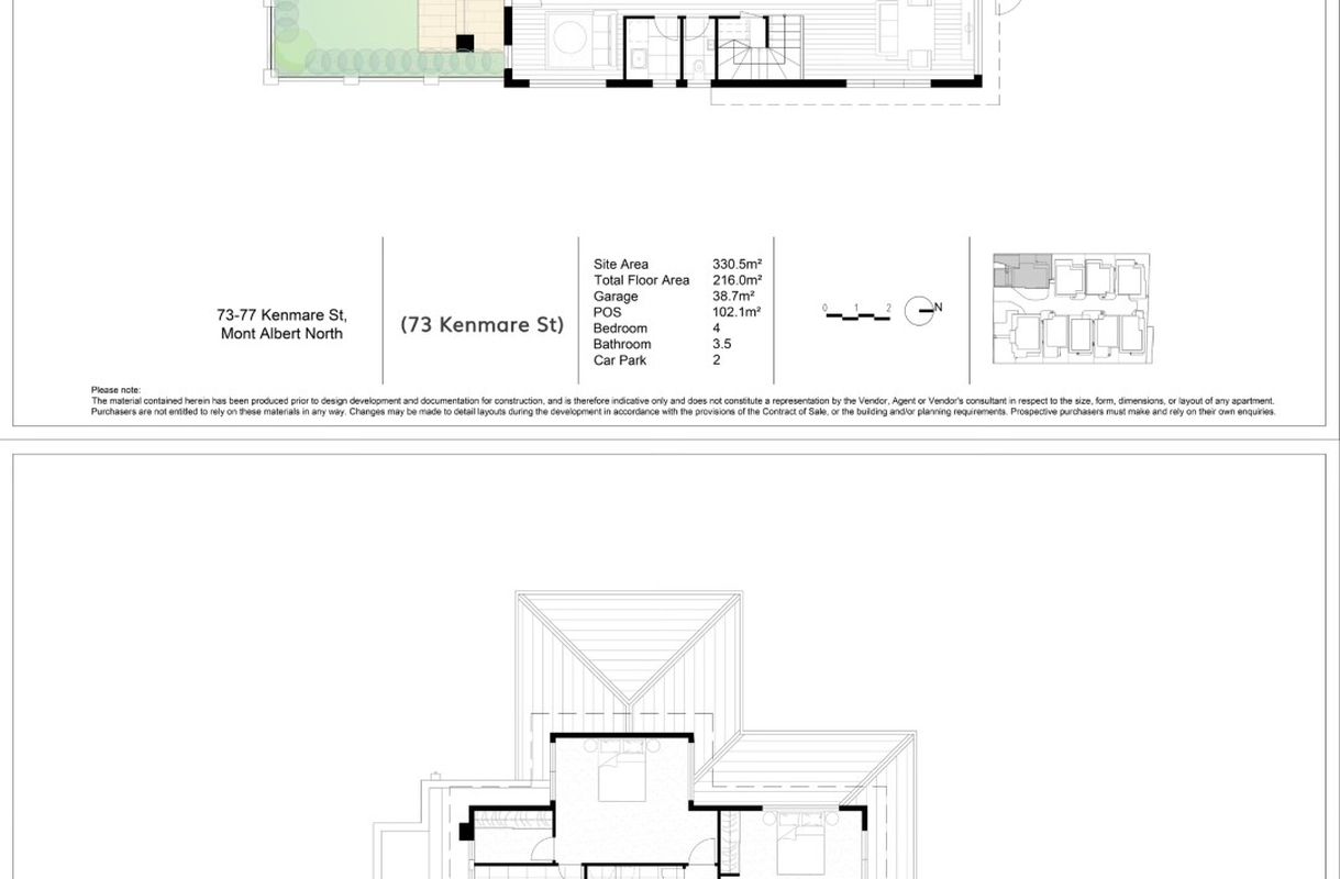
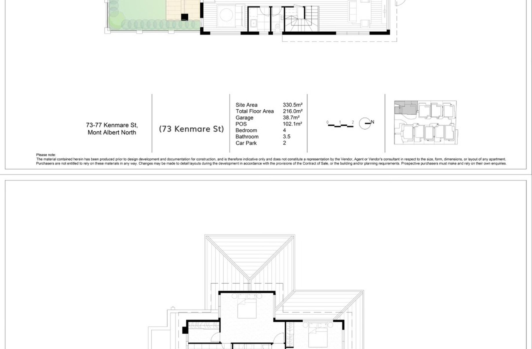
73 Kenmare Street, Mont Albert North
| 4 Beds | 3 Baths | 330 Square metres | 2 car spaces |
4 bed, 3.5 bath, 2 carpark, 216sqm, 330.5sqm - Price: $2,300,000 (Includes a $58,888 rebate)
Introducing 73 Kenmare St, a distinguished freestanding residence that stands apart with no shared walls, offering unparalleled privacy within a new community. Commanding a generous 330.5sqm block, this four-bedroom home provides 216sqm of sophisticated living space designed for luxury and comfort.
Featuring high-end finishes such as ducted heating and cooling, premium flooring, and a stylish kitchen with stainless steel appliances, this home is a true sanctuary. Enjoy the benefits of a prime location, including walkable access to elite schools, Box Hill Hospital, and Mont Albert Reserve, all while being moments from Box Hill Central's vibrant hub.

Priority Buyer Alerts
Get Advance Access To The Hottest Properties. Everyone knows the best properties do not last on the market long.
Priority Buyer Alerts
Get Advance Access To The Hottest Properties. Everyone knows the best properties do not last on the market long.